Skip to content

Ledig lokal

← Tillbaka

Aröds Industriväg 66 - Hisings Backa

Praktisk kombilokal i utmärkt läge

Rymlig lager- och industrilokal i Hisings Backa med direkt närhet till Lundbyleden, E6:an och Göteborgs hamn, vilket ger snabb tillgång till både norr- och södergående trafikleder. Parkeringsmöjligheterna utanför byggnaden är dessutom mycket goda.

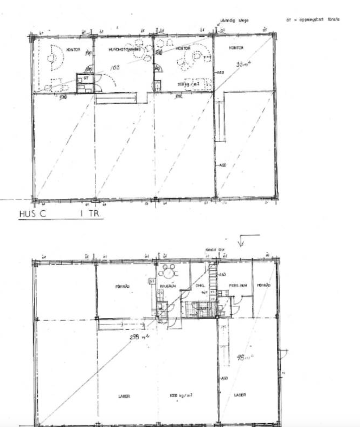
Lokalen är praktiskt utformad med två portar som gör in- och utlastning smidig, samt en rejäl yta utanför för uppställning eller parkering. Invändigt finns tre separata pentryn, flera rum som kan användas som kontor, mötesrum eller personalytor – och till och med en bastu som sätter en extra guldkant på arbetsmiljön.

Den öppna lagerytan erbjuder god takhöjd och passar utmärkt för verksamheter inom exempelvis lagerhantering, lättare industri eller produktion.

Detta är en flexibel och komplett lokal i ett utmärkt läge – perfekt för företag som värdesätter funktionalitet, bekvämlighet och tillgänglighet.

Kontaktperson

Agneta Clark

Agneta Clark
031-24 23 00 / 0709-24 23 42
agneta@lokallots.se

Intresseanmälan

Tipsa en vän

Direktlänk till denna lokalen:
Kopiera https://lokallots.se/objekt/arods-industrivag-66-2

Ladda ner PDF

Lokaltyp:
Kombi, Lager, Lager / Logistik
Stad:
Hisings Backa
Område:
CentrumHisingen
Adress:
Aröds Industriväg 66
Area:
533

Ska vi prata lokaler?

Skicka ett mail eller ring!

info@lokallots.se

031 - 24 23 00