Skip to content

Ledig lokal

← Tillbaka

Askims Verkstadsväg 9 - Askim

Lager-/logistik i toppskick

Lokal med höglager, markportar och moderna kontorsytor i populära Sisjöns Industriområde.

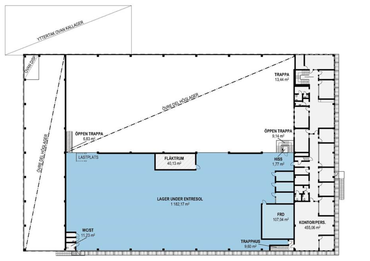
Lagret är ca 4800 kvm med fri takhöjd upp till dryga 7 meter.

Två markportar.

Golvbörighet: 3 ton/kvm i lagerdelen, 400 kg/kvm på entresolplan och 1 ton/kvm under entresol.

Kontoren är modernt renoverade 2015 och fördelade över två våningsplan med mötesrum, pausytor, matsal, pentry och WC.

I källaren finns förråd, omklädningsrum, dusch och bastu.

Inhägnad tomt med plats för ca 30 p-platser.

Sisjöns Industriområde anses vara ett av Norra Europas mest eftertraktade och dynamiska handelsområden. Läget ligger strategiskt nära motorleder och knutpunkter och mycket nära Göteborgs Centrum.

Närområdet erbjuder ett brett serviceutbud, inklusive Sisjöns Shoppinggalleria, restauranger, träningsmöjligheter och köpcentrum 421. Goda kollektivtrafikförbindelser finns också tillgängliga.

Kontaktperson

Petter Skoglund

Petter Skoglund
031-24 23 00 / 0706-40 95 00
petter@lokallots.se

Intresseanmälan

Tipsa en vän

Direktlänk till denna lokalen:
Kopiera https://lokallots.se/objekt/askims-verkstadsvag-9

Ladda ner PDF

Lokaltyp:
Lager / Logistik
Stad:
Askim
Område:
GöteborgCentrumSisjön
Adress:
Askims Verkstadsväg 9
Area:
5943
Tillträdesinformation:
Snabbt tillträde möjligt

Ska vi prata lokaler?

Skicka ett mail eller ring!

info@lokallots.se

031 - 24 23 00