Skip to content

Ledig lokal

← Tillbaka

E A Rosengrens gata 5 - Västra Frölunda

Snygg och funktionell kombilokal i centrala Högsbo

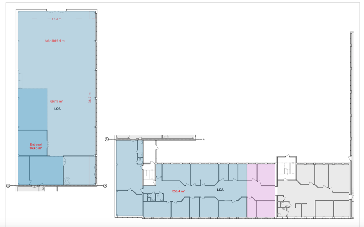
Den här fastigheten erbjuder en flexibel kombination av lager-, verkstad- och logistikytor tillsammans med moderna kontor och kompletterande funktioner som låglager, personalutrymmen, parkeringsplatser och mycket mer.

Läget är utmärkt – precis vid Dag Hammarskjöldsleden – med goda skyltmöjligheter, smidig tillgång till kollektivtrafik och enkel anslutning till de större lederna. På fastigheten finns gott om parkeringsplatser för både personal och besökare.

Den generösa lagerdelen har en takhöjd på cirka 6,5 meter under balk, och porten mäter omkring 6 meter i både höjd och bredd. Ett entresolplan finns i dag installerat, men kan enkelt tas bort för att utnyttja hela takhöjden vid behov. En travers på 10 ton finns också.

Utöver huvudlagret finns även ett mindre låglager, utrustat med både vanlig dörr och rullport. Gårdsytan är inhägnad. Skyltplats finns på fasaden för synlig exponering mot förbipasserande trafik.

Serviceutbudet i området är mycket bra – med närhet till både Frölunda Torg och köpcentret 421. Högsbo industriområde erbjuder dessutom ett stort urval av lunchrestauranger och bekvämligheter, vilket gör arbetsvardagen enkel och trivsam.

Kontaktperson

Agneta Clark

Agneta Clark
031-24 23 00 / 0709-24 23 42
agneta@lokallots.se

Intresseanmälan

Tipsa en vän

Direktlänk till denna lokalen:
Kopiera https://lokallots.se/objekt/e-a-rosengrens-gata-5-3

Ladda ner PDF

Lokaltyp:
Lager, Kombilokal, Kontor
Stad:
Västra Frölunda
Område:
CentrumHögsboVästra Göteborg
Adress:
E A Rosengrens gata 5
Area:
1200
Tillträdesinformation:
Omgående eller enligt ö.k.

Ska vi prata lokaler?

Skicka ett mail eller ring!

info@lokallots.se

031 - 24 23 00