Skip to content

Ledig lokal

← Tillbaka

Ejdergatan 3 - Göteborg

Kombilokal i Centrala Göteborg

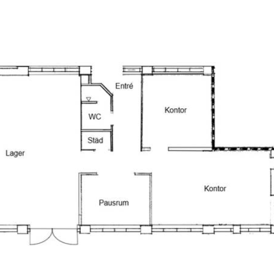
Unik lokal med kontor och lager centralt! Beläget i en vacker tegelfastighet finns nu en lokal som kombinerar kontor med lager.

Dubbelport direkt in från gatan till lagret.

Kontoret har en egen ingång.

Parkering alldeles utanför och lätt access ut på lederna.

I området finns restauranger, små butiker, träning och hela Redbergsplatsens shoppingutbud.

Kontaktperson

Agneta Clark

Agneta Clark
031-24 23 00 / 0709-24 23 42
agneta@lokallots.se

Intresseanmälan

Tipsa en vän

Direktlänk till denna lokalen:
Kopiera https://lokallots.se/objekt/ejdergatan-3

Ladda ner PDF

Lokaltyp:
Kontor, Lager, Kombilokal
Stad:
Göteborg
Område:
CentrumÖstra Göteborg
Adress:
Ejdergatan 3
Area:
128

Ska vi prata lokaler?

Skicka ett mail eller ring!

info@lokallots.se

031 - 24 23 00