Skip to content

Ledig lokal

← Tillbaka

Ejdergatan 3 C - Göteborg

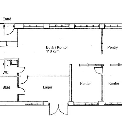
Kombilokal med lager, kontor och showroom

I ett centralt läge i en vacker tegelfastighet finns nu en liten trevlig lokal med kontor, showroom och lager. Lagret har en port in direkt från gatan och kontorsdelen har också en egen entré.

Mycket ljus och rymlig lokal tack vare stora fönster och glaspartier mellan kontoren.

En pärla i Olskroken!

Kontaktperson

Agneta Clark

Agneta Clark
031-24 23 00 / 0709-24 23 42
agneta@lokallots.se

Intresseanmälan

Tipsa en vän

Direktlänk till denna lokalen:
Kopiera https://lokallots.se/objekt/ejdergatan-3-c

Ladda ner PDF

Lokaltyp:
showroom, Kombilokal, Kontor, Lager
Stad:
Göteborg
Område:
CentrumÖstra Göteborg
Adress:
Ejdergatan 3 C
Area:
118

Ska vi prata lokaler?

Skicka ett mail eller ring!

info@lokallots.se

031 - 24 23 00