Skip to content

Ledig lokal

← Tillbaka

Exportgatan 17 - Hisings Backa

Kombilokal med kontor och lager i populära Hisings Backa

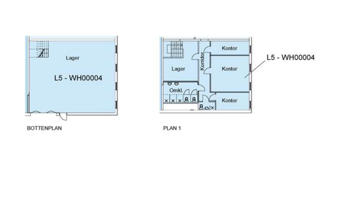
En praktisk lokal med lager om 113 kvm i markplan med port. Golvbrunn finns. Takhöjd ca 3,5 meter.

En trappa upp finns personalytor om 97 kvm med kontor, pentry samt WC.

Backa industriområde är mycket populärt med goda kommunikationer och lätt att komma ut på E6:an. Gott om restauranger och service i närområdet.

Parkering finns för 2-3 bilar.

Kontaktperson

Agneta Clark

Agneta Clark
031-24 23 00 / 0709-24 23 42
agneta@lokallots.se

Intresseanmälan

Tipsa en vän

Direktlänk till denna lokalen:
Kopiera https://lokallots.se/objekt/exportgatan-17

Ladda ner PDF

Lokaltyp:
Kombilokal
Stad:
Hisings Backa
Område:
CentrumHisingen
Adress:
Exportgatan 17
Area:
210
Tillträdesinformation:
Omgående

Ska vi prata lokaler?

Skicka ett mail eller ring!

info@lokallots.se

031 - 24 23 00