Skip to content

Ledig lokal

← Tillbaka

Filmjölksgatan 1 - Göteborg

Skapa din butik i nya Kallebäcks terasser

För den som etablerar sin verksamhet här väntar 1800 hushåll med potentiella stammisar runt knuten när området står klart. Många har redan hunnit flytta in!

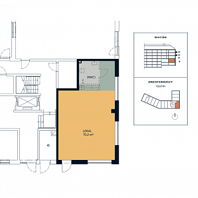
Nu kan vi erbjuda en nyproducerad butikslokal om 70 kvm i ett attraktivt hörnläge med stora fönsterpartier precis intill busshållplatsen och är en del av det nya handelsstråket som utvecklas i Kallebäcks Terrasser. I området planeras det för både restauranger, gym, apotek, vårdcentral, skola och förskola.

Med strategiskt läge precis intill E6:an och riksväg 40 och mycket bra kommunikationer med buss, är det även lätt för förbipasserande att ta en sväng förbi just dig.

Välkommen till oss för mer information.

Kontaktperson

Agneta Clark

Agneta Clark
031-24 23 00 / 0709-24 23 42
agneta@lokallots.se

Intresseanmälan

Tipsa en vän

Direktlänk till denna lokalen:
Kopiera https://lokallots.se/objekt/filmjolksgatan-1

Ladda ner PDF

Lokaltyp:
Butik
Stad:
Göteborg
Område:
Södra Göteborg
Adress:
Filmjölksgatan 1
Area:
70

Ska vi prata lokaler?

Skicka ett mail eller ring!

info@lokallots.se

031 - 24 23 00