Skip to content

Ledig lokal

← Tillbaka

Gamla Kronvägen 88-92 - Partille

Stora lager- och logistikytor i centrala Partille

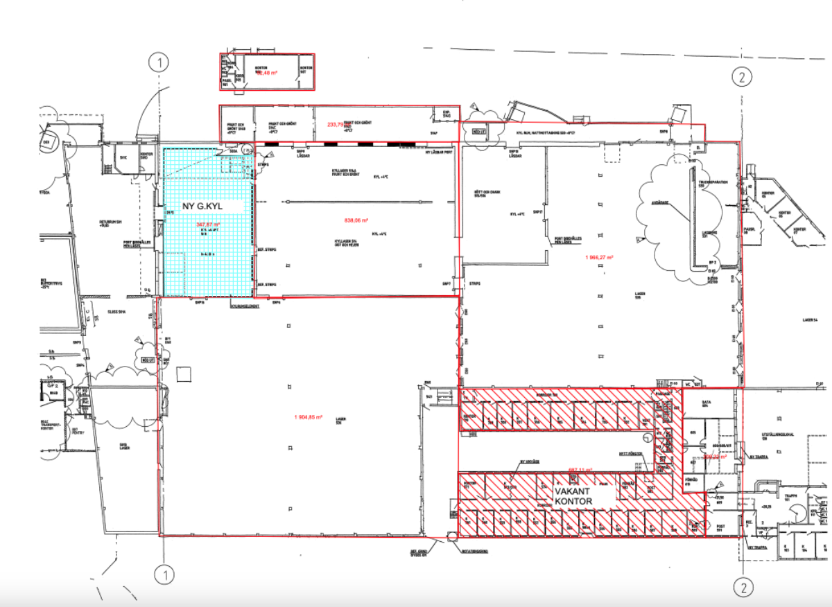
Lagerytan är på totalt ca 13 500 kvm och går att dela upp i flera olika delar. Samtliga ytor har tillgång till inlastning via lastkaj. Det finns även 1 500 kvm kontor i gott skick att hyra till.

Förslag på uppdelning kan se ut så här:

Alternativ 1: 2 310 m², innehållande lager med lastkajer, en markport samt personalytor.

Alternativ 2: 4 095 m² innehållande lager och kylrum samt personalytor.

Alternativ 3: 1 966 m² innehållande lager med kylrum om 1 966 m², kontor finns att hyra till om ca 300 m².

Alternativ 4: 4 072 m² innehållande lager med kyl/frys rum, truckladdning samt personalytor med 3 kontorsrum.

Stallage finns i större delen av ytorna. Det finns även markyta utanför portarna på fastighetens baksida.

Kontaktperson

Petter Skoglund

Petter Skoglund
031-24 23 00 / 0706-40 95 00
petter@lokallots.se

Intresseanmälan

Tipsa en vän

Direktlänk till denna lokalen:
Kopiera https://lokallots.se/objekt/gamla-kronvagen-88-92

Ladda ner PDF

Lokaltyp:
Lager / Logistik
Stad:
Partille
Område:
PartilleGöteborg
Adress:
Gamla Kronvägen 88-92
Area:
15000

Ska vi prata lokaler?

Skicka ett mail eller ring!

info@lokallots.se

031 - 24 23 00