Skip to content

Ledig lokal

← Tillbaka

Göteborgsvägen 74 - Sävedalen

Ledig yta i kontorshuset Navet

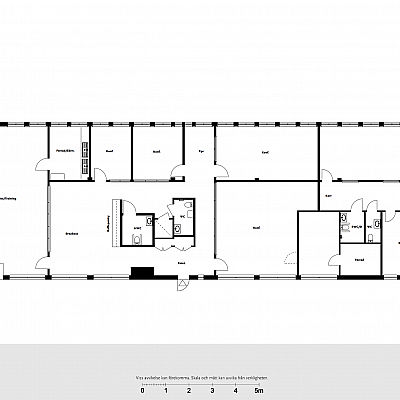
Fint kontor om 353 kvm på plan 3. Lokalen är dagsläget anpassat för 20 arbetsplatser och har totalt fyra konferensrum i olika storlekar. Här finns stora möjligheter att anpassa lokalen efter era önskemål.

Lokalen ligger i det populära kontorshuset Navet i Sävedalen där det också finns butiker i bottenplan med bland annat konditori och blommor.

Välkommen till oss för mer information och visning.

Kontaktperson

Agneta Clark

Agneta Clark
031-24 23 00 / 0709-24 23 42
agneta@lokallots.se

Intresseanmälan

Tipsa en vän

Direktlänk till denna lokalen:
Kopiera https://lokallots.se/objekt/goteborgsvagen-74-3-1

Ladda ner PDF

Lokaltyp:
Kontor
Stad:
Sävedalen
Område:
Östra Göteborg
Adress:
Göteborgsvägen 74
Area:
353

Ska vi prata lokaler?

Skicka ett mail eller ring!

info@lokallots.se

031 - 24 23 00