Skip to content

Ledig lokal

← Tillbaka

Götgatan 10 - Göteborg

Nyrenoverat vid Centralstationen

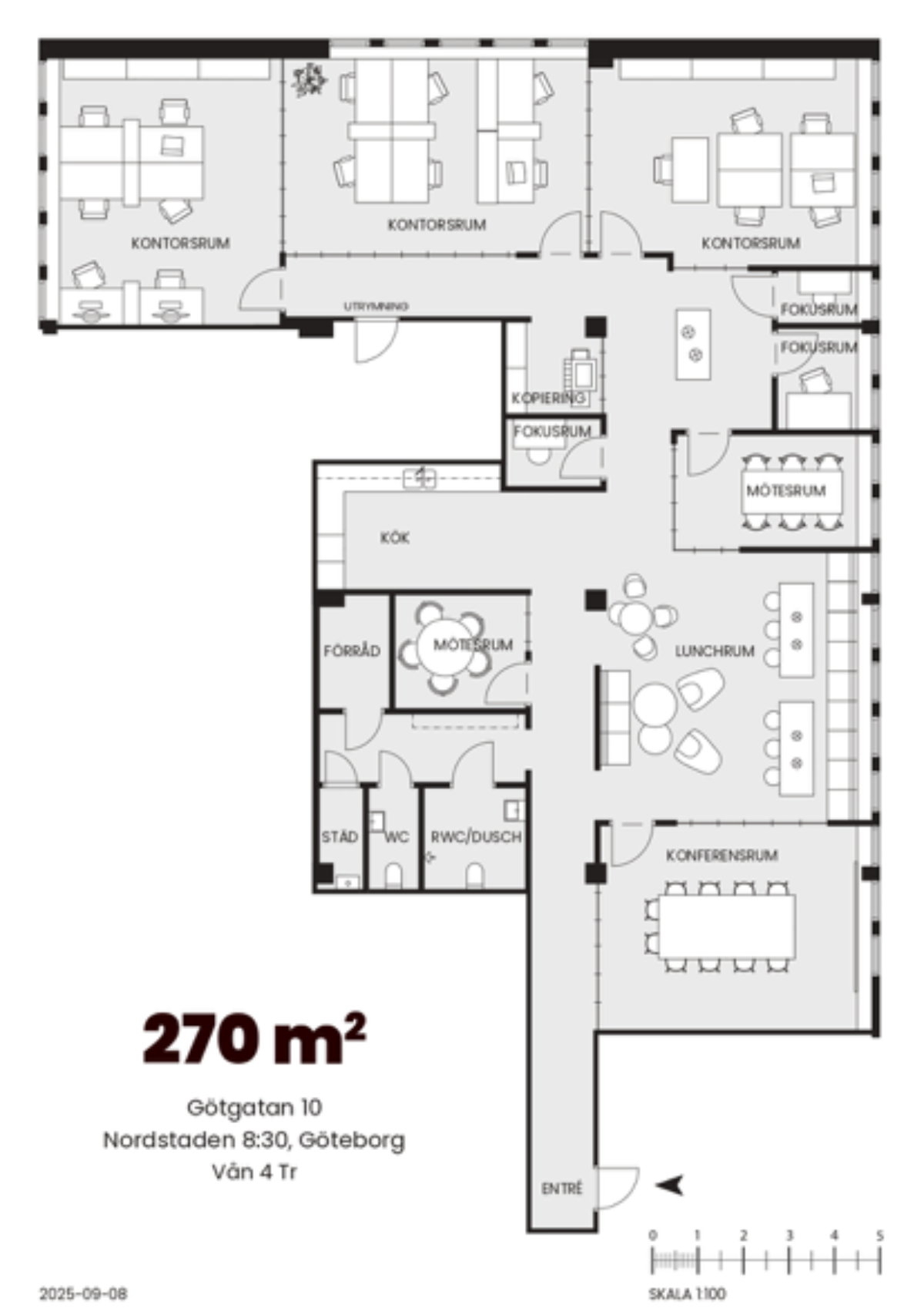
Högst upp i huset, med fönster i tre väderstreck, ligger ett modernt och trivsamt kontor med skön atmosfär. Färgvalen ger en lugn känsla och gör det till en plats att se fram emot att komma till. Planlösningen passar dagens arbetsliv med flera tysta rum, mötesrum och ytor för samarbete.

Lokalen har nykaklade toaletter (en med dusch), ett fräscht kök samt gemensamma utrymmen för fika, möten och avkoppling.

Läget i Nordstan är svårslaget med gångavstånd till det mesta. Bara ett par minuter till Centralstationen, Drottningtorget och Brunnsparken finns all möjlig kollektivtrafik inom räckhåll. För den bilburne finns p-hus från vilket man kan gå torrskodd till kontoret.

Från det lugna kontoret kommer man direkt ut till bruset och stadslivet som erbjuder allt man kan önska under en arbetsdag såsom stort utbud av lunchrestauranger, caféer, shopping, dagligvaruhandel, träning, hotell, kultur och mycket mer.

En inflyttningsklar pärla – redo att användas direkt.

Kontaktperson

Agneta Clark

Agneta Clark
031-24 23 00 / 0709-24 23 42
agneta@lokallots.se

Intresseanmälan

Tipsa en vän

Direktlänk till denna lokalen:
Kopiera https://lokallots.se/objekt/gotgatan-10-3

Ladda ner PDF

Lokaltyp:
Kontor
Stad:
Göteborg
Område:
Centrum
Adress:
Götgatan 10
Area:
270
Tillträdesinformation:
hösten 2026

Ska vi prata lokaler?

Skicka ett mail eller ring!

info@lokallots.se

031 - 24 23 00