Skip to content

Ledig lokal

← Tillbaka

Hulda Mellgrens gata 11 - Västra Frölunda

Kontor vid Sisjömotet

Trevlig kontorslokal i fastighet med fint läge vid Sisjömotet i Högsbo.
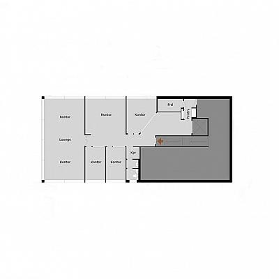
Kontoret har tre separata kontorsrum samt flera ytor passande för öppen sittning i landskap. Med placering högst upp i huset får lokalen ett mycket trevligt ljusinsläpp mot Söderleden. Parkeringsplatser direkt utanför entrén.

Välkommen till oss för mer information och visning.

Kontaktperson

Agneta Clark

Agneta Clark
031-24 23 00 / 0709-24 23 42
agneta@lokallots.se

Intresseanmälan

Tipsa en vän

Direktlänk till denna lokalen:
Kopiera https://lokallots.se/objekt/hulda-mellgrens-gata-11-2-1

Ladda ner PDF

Lokaltyp:
Kontor
Stad:
Västra Frölunda
Område:
Västra Göteborg
Adress:
Hulda Mellgrens gata 11
Area:
219
Tillträdesinformation:
Tillträde enligt ö.k

Ska vi prata lokaler?

Skicka ett mail eller ring!

info@lokallots.se

031 - 24 23 00