← Tillbaka
                
                                            
                                                    
                            
                            
                                            
                    
                
            
        Idrottsvägen 14 A - Mölndal
Flexibel lokal med mycket fina ytskikt
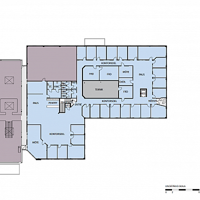
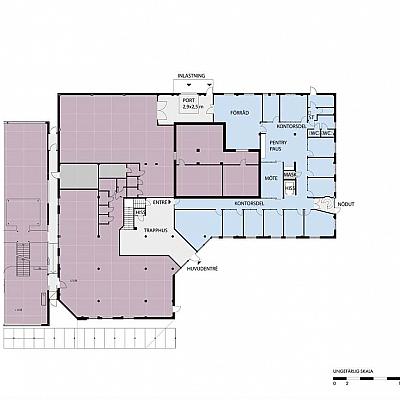
Lokalen är idag fördelad över två plan om totalt 1 168 kvm och innefattar flertal kontorsrum, öppna, ljusa ytor, mötesrum och med internhiss mellan våningarna. Här finns också lager och port med generösa mått och goda inlastningsmöjligheter.
Söker ni en mindre yta finns det möjlighet att hyra ett av planen och anpassa lokalen för just er verksamhet. Det mindre våningsplanet är ca 340 kvm.
Välkommen för mer information och visning.
Intresseanmälan
Tipsa en vän
                        Direktlänk till denna lokalen:
                        
                              Kopiera
                            https://lokallots.se/objekt/idrottsvagen-14-a
                            
                        
                    
 
                                 
                                         
                                         
                                         
                                         
                                         
                                         
                                         
                                        