Skip to content

Ledig lokal

← Tillbaka

Kyrkogatan 44 - Göteborg

Supercentralt inom Vallgraven

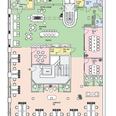
I en vacker byggnad finns nu en härlig kontorslokal med generösa ytor. Nya fönster kommer att monteras och skapa ytterligare ljusinsläpp. Utsikt mot Kyrkogatan och Östra Hamngatan. Känn stadens puls inne i lokalen samtidigt som du kan hitta lugna ytor till koncentrerat arbete.

Läget Inom Vallgraven är svårslaget och det är endast några minuters promenad till Centralstationen åt ena håller och Kungsportsplatsen åt det andra. All tänkbar kollektivtrafik inom bara några minuter. För den bilburne finns närliggande parkeringshus och i byggnaden intill finns cykelgarage.

Restauranger, caféer, barer, shopping, träning, kulturupplevelser och mycket mer finns inom ett par minuter och för en lugn avkopplande lunch finns parken runt Domkyrkan att tillgå.

Välkommen för mer information.

Kontaktperson

Agneta Clark

Agneta Clark
031-24 23 00 / 0709-24 23 42
agneta@lokallots.se

Intresseanmälan

Tipsa en vän

Direktlänk till denna lokalen:
Kopiera https://lokallots.se/objekt/kyrkogatan-44-2

Ladda ner PDF

Lokaltyp:
Kontor
Stad:
Göteborg
Område:
Centrum
Adress:
Kyrkogatan 44
Area:
436

Ska vi prata lokaler?

Skicka ett mail eller ring!

info@lokallots.se

031 - 24 23 00