Skip to content

Ledig lokal

← Tillbaka

Långavallsgatan 8 A - Gunnilse

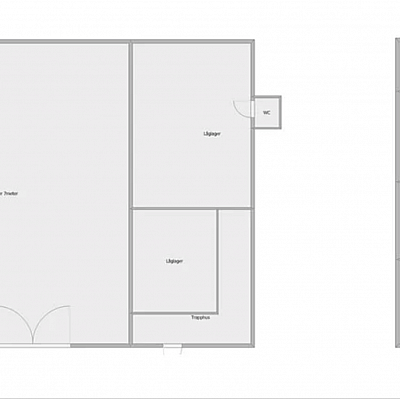
Mindre kombilokal i Linnarhult

I Linnarhults industriområde finns nu en funktionell kombilokal med bra hyra. Lager, kontor, lunchrum och toalett.

Välkommen till oss för mer information och visning.

Kontaktperson

Agneta Clark

Agneta Clark
031-24 23 00 / 0709-24 23 42
agneta@lokallots.se

Intresseanmälan

Tipsa en vän

Direktlänk till denna lokalen:
Kopiera https://lokallots.se/objekt/langavallsgatan-8-a-1-1

Ladda ner PDF

Lokaltyp:
Lager / Logistik, Kontor
Stad:
Gunnilse
Område:
Östra Göteborg
Adress:
Långavallsgatan 8 A
Area:
376

Ska vi prata lokaler?

Skicka ett mail eller ring!

info@lokallots.se

031 - 24 23 00