Skip to content

Ledig lokal

← Tillbaka

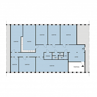
Lundby Hamngata 24 - Göteborg

Ljus och rymlig, rumsindelad kontorslokal på plan två med egen entré.
Utanför finns det gott om parkeringsplatser och närhet både till Backaplan, centrala Göteborg och Lindholmen.

Kontaktperson

Agneta Clark

Agneta Clark
031-24 23 00 / 0709-24 23 42
agneta@lokallots.se

Intresseanmälan

Tipsa en vän

Direktlänk till denna lokalen:
Kopiera https://lokallots.se/objekt/lundby-hamngata-24

Ladda ner PDF

Lokaltyp:
Kontor
Stad:
Göteborg
Område:
Hisingen
Adress:
Lundby Hamngata 24
Area:
305

Ska vi prata lokaler?

Skicka ett mail eller ring!

info@lokallots.se

031 - 24 23 00