Skip to content

Ledig lokal

← Tillbaka

Skallsjö Parkväg 1 N - Floda

Utmärkt lokal i lagerlänga

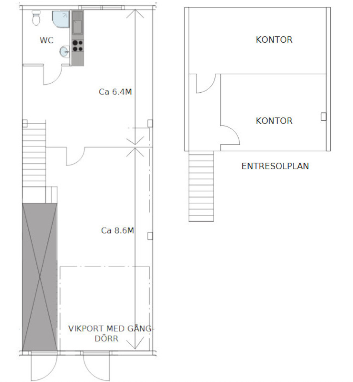
Lageryta med stort entresolplan med kontor, pentry, WC med dusch, port, 3-fasuttag, golvavlopp och bra takhöjd.

Kontaktperson

Petter Skoglund

Petter Skoglund
031-24 23 00 / 0706-40 95 00
petter@lokallots.se

Intresseanmälan

Tipsa en vän

Direktlänk till denna lokalen:
Kopiera https://lokallots.se/objekt/skallsjo-parkvag-1-n

Ladda ner PDF

Lokaltyp:
Kombilokal, Lager
Stad:
Floda
Område:
FlodaLerumStenkullenGöteborg
Adress:
Skallsjö Parkväg 1 N
Area:
130

Ska vi prata lokaler?

Skicka ett mail eller ring!

info@lokallots.se

031 - 24 23 00