Skip to content

Ledig lokal

← Tillbaka

Stora Nygatan 1 - Göteborg

Egen fastighet vid Drottningtorget

En chans som sällan dyker upp – hyr en helt egen fastighet bara en minut från Centralstationen! Här möts funktion, stolthet och karaktär i en vacker byggnad i klassiskt gult tegel, omgiven av historiska fastigheter och med en entré bara för er. Samla hela verksamheten under ett tak och ge både kunder och medarbetare en representativ adress vid Drottningtorget – bättre kommunikationer och pendlingsmöjligheter är svårt att hitta.

Precis intill ligger Trädgårdsföreningen – den perfekta platsen för en promenad, återhämtning eller ny energi mitt i arbetsdagen.

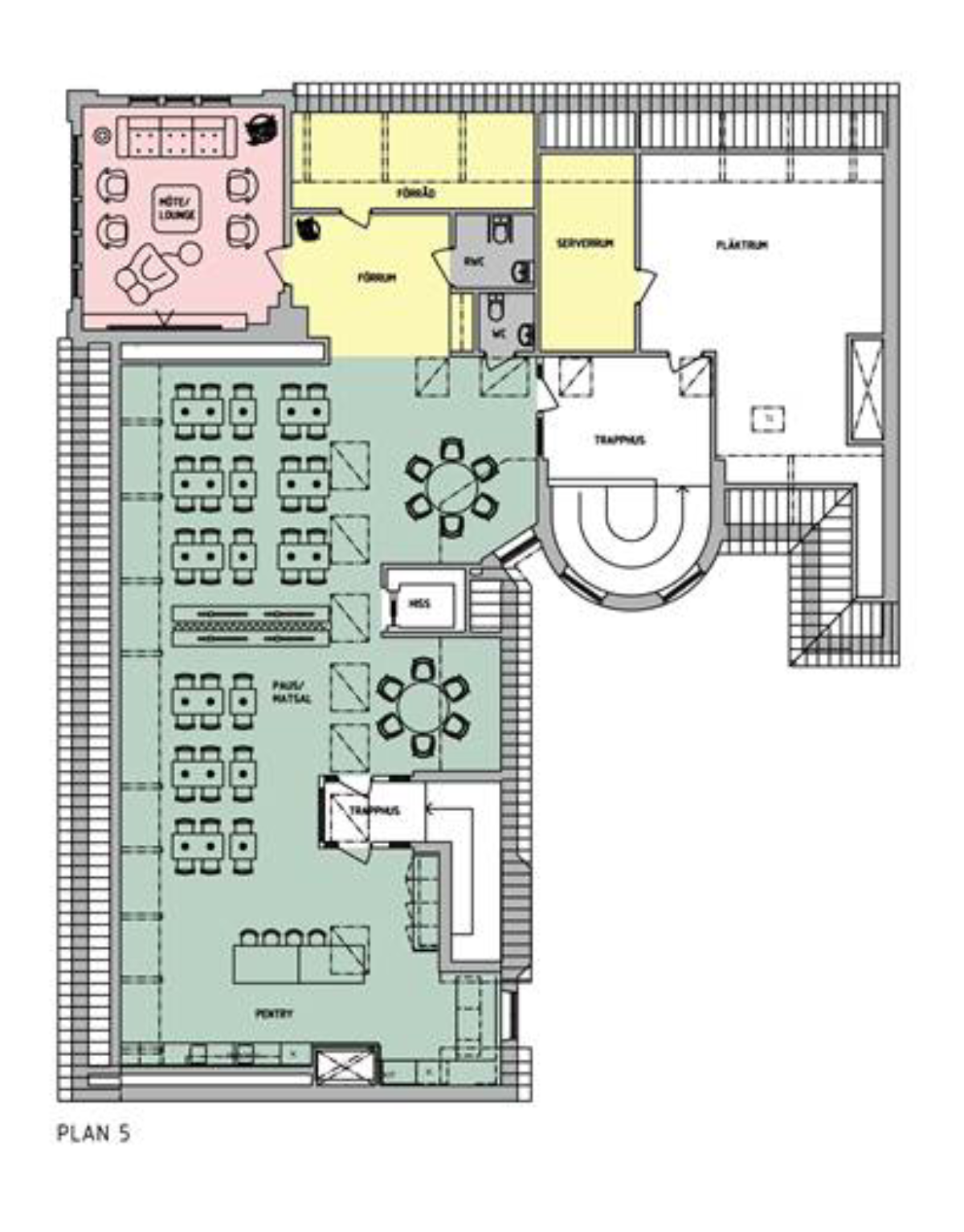
Fastigheten erbjuder fyra våningsplan med stora möjligheter att forma lokalerna efter era behov – kontor, mötesrum, ytor för samlingar och inspirerande interaktion mellan kollegor.

Kort sagt: ett hus att längta till, och en arbetsplats man trivs i – varje dag.

Kontaktperson

Agneta Clark

Agneta Clark
031-24 23 00 / 0709-24 23 42
agneta@lokallots.se

Intresseanmälan

Tipsa en vän

Direktlänk till denna lokalen:
Kopiera https://lokallots.se/objekt/stora-nygatan-1

Ladda ner PDF

Lokaltyp:
Kontor
Stad:
Göteborg
Område:
Centrum
Adress:
Stora Nygatan 1
Area:
1348

Ska vi prata lokaler?

Skicka ett mail eller ring!

info@lokallots.se

031 - 24 23 00