← Tillbaka
                
                                            
                                                    
                            
                            
                                            
                    
                
            
        Tomasgårdsvägen 19 - Alingsås
Toppenfin fastighet med höglager och kontor
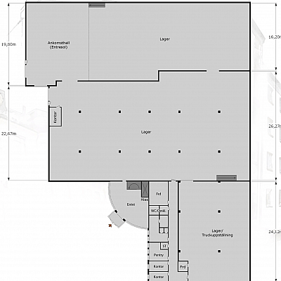
Total yta på byggnaden är ca 4 400 kvm varav ca 1500 kvm modernt och snyggt kontor. Lokalen har blandad planlösning och med ett par takterasser. 
Resterande yta om ca 3 100 kvm är höglager i mycket bra skick.
Fastigheten är belägen alldeles intill och med smidig access till E20. 
Hiss finns.
Gott om parkeringsplatser för besökare och anställda.
Välkommen till oss för mer information och visning.
Intresseanmälan
Tipsa en vän
                        Direktlänk till denna lokalen:
                        
                              Kopiera
                            https://lokallots.se/objekt/tomasgardsvagen-19-1
                            
                        
                    
 
                                 
                                         
                                         
                                         
                                         
                                         
                                         
                                         
                                         
                                        